Detached House
陽当たり良好!南西向きリビング
【西軽井沢】追分上の原新築戸建
No.466販売中
新 着
令和7年10月下旬完成予定
北佐久郡軽井沢町大字追分
しなの鉄道「信濃追分駅」より約3.5km
価格 :6,800万円
☆2階リビング3LDK

種 別 | 一戸建て |
---|---|
所在 | 北佐久郡軽井沢町大字追分 |
交 通 | しなの鉄道「信濃追分駅」より約3.5km |
土地面積 | 369㎡(約111.62坪) |
建物面積 | 119.24㎡( 約36.07坪) |
構 造 | 木造ガルバリウム鋼板葺2階建て |
築 年 | 令和7年10月下旬完成予定 |
地 目 | 山林 |
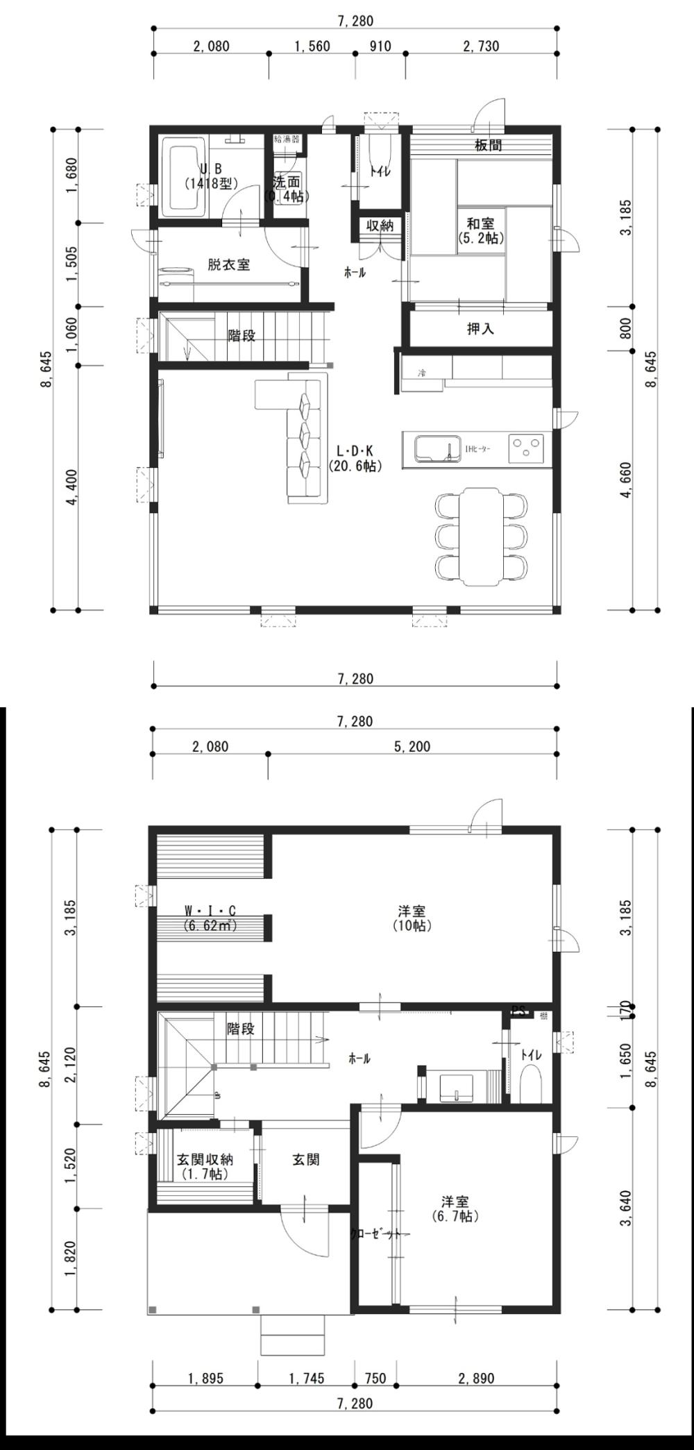
間取り | 3LDK |
建ぺい率 | 60% |
容積率 | 160% |
管理形態 | 自主管理 |
引渡し | 建物完成後 |
取引態様 | 仲介 |
用途地域 | 第一種住居地域 |
備 考 | 公営水道 中部電力 合併浄化槽 プロパンガス 西側幅員約4.2mの公道に間口が約6m接道 軽井沢自然保護対策要綱に基づく指導あり 建築確認番号:6佐建第601-050号 エアコン4台(リビング・各居室)、床下放熱器2台 物件番号:3679 |
間取り図 3LDK 土地面積369㎡(約111.62坪) 建物面積119.24㎡( 約36.07坪)

資料請求・お問合わせ
電話やFAXでもお受けしております
TEL.0267-42-7772 / FAX.0267-42-0377
年中無休(年末年始除く) お問合せはお気軽に!
※マークは必須項目ですので、必ずご入力してください。